
485联网远传预付费型 16-24户
1、产品介绍
DDSH1703型多用户电能表可同时供39户单相或13户三相用户使用,该表可通过RS485联网组成多用户远程自动抄表与控制系统,用户购电后不必到电表刷卡,管理部门可通过电脑给用户卖电,并可随时通过电脑自动抄收各户的用电信息,便于管理部门及时统计个月的用电量。该表内部磁保持继电器过流能力强,在用户增加大功率用电器的情况下不用更换电表,本产品大大方便了物业管理,有效防止偷漏电行为,并解决了收费难的问题,是企事业单位、城镇居民小区、学生公寓、旧楼电表改造、高层建筑等用电计量及控制的理想产品。
2、产品功能特点
● 专用防潜动看门狗电路,零潜动,工作更可靠。
● 采用专用接线端子,双螺栓压线,使用安全可靠。
● 预付费功能,先交钱,后用电,分户计量、集中控制、精度高、性能稳定、使用寿命长。
● 数码管清晰显示每个用户的用电信息,上排数码管显示用户号,下排数码管显示剩余电量,每隔4秒钟显示一户。
● 可计量控制单相39户或三相13户的用电,同一块电表可同时提供三相用电输出或单相用电输出。
● 具有限电拉闸报警功能:可为每户设定不同的限电功率,当用户超过此设定功率后,电表自动断电,该户用电负荷降低后,电表自动恢复供电。
● 具有联网远传控制功能,用户可通过RSVVP2×1.0双绞屏蔽线以RS485总线方式连接,再通过数据采集器与电脑连接,形成一个485通讯网络,通过上位机管理软件实现多用户电表联网抄表及通断电控制。
● 联网远程卖电功能:管理部门可直接通过软件对处于该系统内的电表进行卖电。
● 联网远程通断电功能:通过管理软件,管理部门可对该远控系统内的用户强制进行通断电,而用户的数据不会丢失。
● 联网远程抄表功能:管理部门通过本系统可随时抄取用户的用电信息,抄表时,管理部门可抄取某一户的剩余电量,也可以抄取某一块表所有用户的剩余电量。
● 产品执行的标准:GB/T17215.321-2008《交流电测量设备特殊要求 第21部分:静止式有功电能表(1级和2级)》;GB/T18460.3-2001《IC卡预付费售电系统 第3部分:预付费电度表》;JB/T10451-2004《多用户静止式交流有功电能表 特殊要求》
● 产品执行的检定规程:JJG(鲁)-2009《多用户电能表检定规程》JJG596-2012《电子式交流电能表检定规程》
3、产品主要技术参数
产品型号 | DDSH1703 |
计量户数 | 单相39户及以下,三相13户及以下 |
额定电压 | 3×220/380V |
标定电流 | 10(50)A |
准确度等级 | 1级 |
脉冲常数 | 3200imp/kW·h |
频率 | 50Hz |
功耗 | <6VA |
出线端导线截面积 | ≤10mm2 |
工作温度 | -25℃~+55℃ |
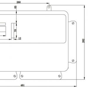
外形尺寸 | 1-15户:426mm×283mm×135mm |
4、外形尺寸图(单位:mm)

单相16-24户或三相6-8户外形尺寸图
| 上一条:485联网远传预付费型 1-15户 | 下一条:485联网远传预付费型 25-27户 |







